Wheel Forge Way - Unit 17

Ashburton Road West, Trafford Park

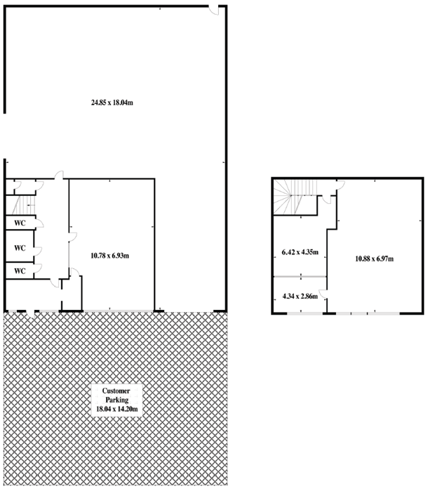
Size: 6,151 SQ.FT.

Key Features

  • Modern mid-terraced industrial unit
  • Open plan warehouse
  • Eaves ranging from 6.1m - 7.7m
  • Roller shutter door
  • High quality office accommodation
  • 4 no. car parking spaces
  • Dedicated yard / loading area
  • 1 mile from Junction 9 of the M60 Motorway